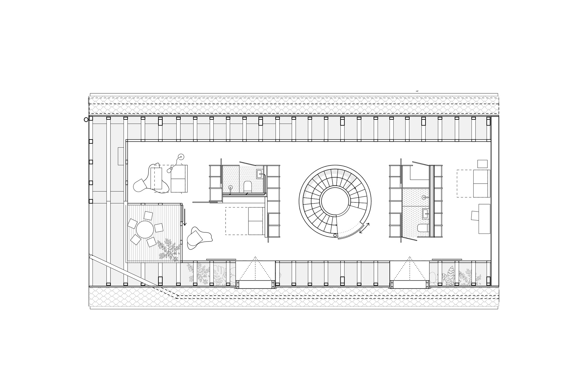
In einem Hinterhof in Mannheim liegt eine mittlerweile fragile Scheune wie aus einer anderen Zeit. Das Gebäude erstreckt sich über Gewölbekeller, Stallungen, Heuboden und Etagen zum Trocknen von Tabak weit nach oben. Ein simpler Eingriff mit einer doppelten Treppe erschließt das Haus für zwei Wohneinheiten und stabilisiert es. Die unteren Räume bleiben weitestgehend unverändert. Weiter oben legt sich eine neue Konstruktion aus Holz in die bestehende Zimmermannskonstruktion. So werden neue Innenräume und Räume zwischen Alt und Neu entstehen.

















